Visita al centro di ricerca sui profughi da e verso la Germania, su progetto di studio Marte.Marte
BERLINO. Fuga, espulsione e riconciliazione: tre parole chiave per convertire un’architettura storica in un museo e centro di ricerca nel cuore della Berlino più dinamica. Quando, nel 2011, lo studio Marte.Marte vince il concorso bandito dalla Bundesstiftung Flucht, Vertreibung, Versöhnung che fa ricerca sulla storia dei profughi verso e dalla terra tedesca, non immagina ancora le complessità con cui dovrà confrontarsi. Il substrato storico-politico e costruito di un edificio del 1926 lo mette di fronte a una difficile sfida: è un mirabile esempio di Neue Sachlichkeit, uno dei pochi sopravvissuti in città, nato col nome di Europahaus ad opera del duo Bielenberg/Moser, con all’interno cinema, negozi, un bar, uffici e altre attività pubbliche, semidistrutto dai bombardamenti bellici, convertito nell’era Adenauer in centro per coltivare la cultura della Germania Est e infine affidato nel 1974 a un’organizzazione impegnata ad aiutare gli esuli di tutte le guerre.
Un luogo speciale
La sua è una complessità sedimentata, a strati, come le mani operaie che l’hanno parzialmente tenuta in piedi negli anni e le fondazioni culturali che si sono succedute entro le sue quattro mura. Dirimpetto alla rovina dell’un tempo meravigliosa Anhalter Bahnhof e del futur(istic)o Exil Museum che l’architetta danese Dorte Mandrup costruirà a breve sull’Askanischer Platz, il Centro di documentazione s’inserisce in un’area della memoria collettiva attiva. Nel suo nome completo la parola riconciliazione è davvero determinante: Berlino intende riappacificarsi con tutti i suoi figli, i perduti e gli acquisiti, e per questo ha bisogno di un luogo speciale.
L’architettura storica in ferro e mattoni, rimasta in piedi negli anni grazie a piccoli interventi puntuali e ora completata esternamente da pochi discreti ritocchi, è esemplare per la sua ritrovata chiarezza. È una nuova Nuova oggettività, messa in nuce da superfici bianche intervallate da cornici e profilati bruni e grandi fasce di finestre al centro delle facciate sulle arterie di traffico principali. Le altre, interamente vetrate, permettono affacci sul Gropius Bau e l’area dedicata alle atrocità naziste, la Topografia del terrore, per una prima, meditata riconciliazione col tragico recente passato di questa nazione. La seconda riconciliazione ha luogo all’interno dell’edificio, nel suo cuore.
Gli interni
L’apparente semplicità degli esterni viene totalmente stravolta nella parte più intima dell’architettura: lo si intuisce già prima di varcarne la soglia davanti a un’ampia apertura vetrata che permette di gettare sguardi sempre più interessati man mano che ci si avvicina allo spazio museale.
Un pannello verticale policromo, alto oltre 30 metri in vetri al piombo, evoca una laica spiritualità in un efficace ossimoro con l’intorno interamente in cemento chiaro a vista. Poco dietro, una “stanza per il silenzio”, progettata con lamelle e doghe in legno dallo studio Königs Architekten di Colonia, offre ai visitatori uno spazio protetto dall’atmosfera introversa, per la quiete e la contemplazione. Ma dal centro del foyer la vista viene subito catturata da due corpi di grande forza plastica: una prima scalinata a cascata rettilinea che conduce al primo piano, aperto e affacciato su quello sottostante; una seconda rampa spiraliforme che da quello porta al secondo, più riservato. È quest’ultima il vero fiore all’occhiello dell’intervento dei fratelli Bernhard e Stefan Marte: leggerissima, si staglia con la sua affascinante sagoma sospesa sulla parete posteriore vetrata, oscurata da tende per l’isolamento acustico e luminoso. I giochi chiaroscurali che si creano da questa contrapposizione sono così invitanti che si passerebbe tutto il tempo a percorrerla, andata e ritorno, vittime della sua fascinazione. Le scale, molto più che funzionali elementi di collegamento verticale, sono sculture che manifestano un’idea architettonica che parla di transizioni fluide.
La scatola che segnano in pianta e alzato è chiusa da un coperchio massiccio, una copertura piana dallo spessore di quasi un metro e mezzo. Poggiando solo sul vano dell’ascensore e sui sostegni della scala grande, è un’opera di vera maestria ingegneristica che ha dovuto tenere conto di due grandi difficoltà imposte dal contesto: la scarsa resistenza del suolo berlinese e le perenni scosse dovute sia al passaggio dei numerosi treni delle vicine linee dell’SBahn che al furioso traffico sulla Stresemannstraße e le sue adiacenti, in direzione Potsdamerplatz.
Ariosità e leggerezza per un’architettura che non soffoca mai, aprendo al contrario aree di grande respiro, luoghi di discussione e affacci luminosi; una costruzione che esclude angoscia e oppressione bensì affascina, quasi eterea come la speranza che racconta e accoglie, prediletta ospite di casa. L’aggiunta massiccia del cemento è dovuta a una scelta statica e stilistica al contempo, alla ricerca di stabilità e grande forza plastica.
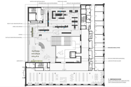
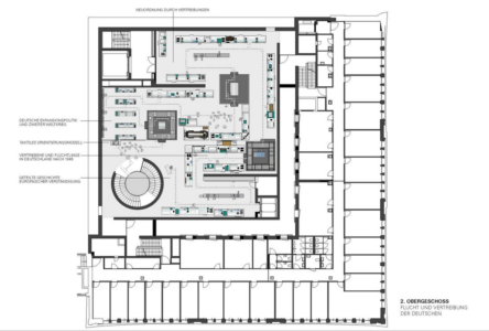
Un design al quale è difficile resistere, emozionalmente denso, prepara ad affrontare le tragiche storie di fuga raccontate dalla mostra permanente con lo stimolante allestimento disegnato dall’Atelier Brückner di Stoccarda, che invita a partecipare anziché fruirle passivamente: chi visita sceglie quale cassetto della memoria aprire, quale storia personale illuminare, interattivamente partecipe nei possibili panni di chi è raccontato. Che potrebbero essere anche i suoi – chi lo sa? – un non troppo lontano domani.
Immagine di copertina: veduta dell’esterno (foto di Roland Horn Courtesy Marte.Marte)
Committente: Bundesstiftung Flucht, Vertreibung, Versöhnung (Berlino)
Progetto architettonico: Marte.Marte Architetti (Feldkirch, Austria)
Progetto museografico: Atelier Brückner, Stoccarda (1° piano: Una storia europea delle migrazioni forzate, 2° piano: Fuga ed espulsione dei tedeschi)
Progetto Raum der Stille: Königs Architekten (Ilse Maria e Ulrich Königs, Colonia)
Cronologia:
2011: concorso per la conversione dell’edificio Europahaus
2012-2019/20: cantiere
23 giugno 2021: inaugurazione e apertura al pubblico
Superficie totale: 12.700 mq
Costo totale dell’intervento: circa 68 milioni (prima somma stimata: 58 milioni)
About Author
Tag
berlino , concorsi , interni , musei
Last modified: 13 Ottobre 2021



































