Modulo ripiegabile per uso provvisorio o in situazioni di emergenza trasportabile su gomma, ferro, ala fissa e rotante e orientabile sul territorio
—
Designer: Alessandro Colombo e Paola Garbuglio
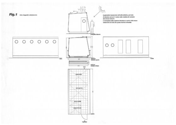
Descrizione: Il progetto riguarda la definizione di uno spazio abitativo minimo – a sezione trapezoidale e ripiegabile su se stesso per lo stoccaggio – trasportabile e studiato in modo da adeguare la propria geometria alle esigenze di trasporti leggeri e veloci mantenendo semplicità e rapidità di installazione nonché adattabilità al luogo, nel quale viene posizionato con l’orientamento più idoneo. Dalla relazione di brevetto: «Un vantaggio di un’unità abitabile così definita è il suo ridotto ingombro e una notevole compattezza quando essa è completamente ripiegata: è possibile ottenere moduli prefabbricati con un rapporto, tra il volume abitabile interno e il volume del modulo ripiegato, particolarmente elevato. La forma del modulo ripiegato a parallelepipedo permette l’impilaggio di diversi moduli e una notevole efficienza di trasporto […] Tali strutture non sono inoltre vincolate all’aspetto del parallelepipedo, ma l’invenzione permette una notevole libertà di forme esterne, con conseguenti vantaggi estetici unitamente alla possibilità di ottenere unità abitative che, introducendo opportune dissimmetrie nella loro struttura, sfruttino più efficacemente rispetto alla tecnica nota i vantaggi di un’orientazione ottimale dell’unità rispetto al sole, ai venti dominanti e ad altri fattori ambientali locali. Questi vantaggi non prescindono da una migliorata rapidità e facilità d’installazione e dalla possibilità di ripiegare e riutilizzare più volte lo stesso modulo prefabbricato».
Anno di sviluppo: 2000
Stato del progetto: Prototipo – Domanda di brevetto per invenzione industriale in Italia MI2000A001094 del 17/05/2000
—



























[…] Modulo prefabbricato ripiegabile per unità abitabile […]