Una monografica alla Triennale Milano ne celebra la carriera di oltre sessant’anni fra design, architettura, scenografia e grafica
MILANO. Tra le esposizioni dedicate ai grandi i maestri negli spazi di Triennale Milano, ha aperto anche l’attesa mostra che celebra la signora dell’architettura e del design italiano, Gae Aulenti (1927-2012) realizzata in collaborazione con l’Archivio Gae Aulenti e curata da Giovanni Agosti con Nina Artioli e Nina Bassoli. Una delle poche donne italiane ad aver influenzato il mondo del progetto a livello internazionale, poliedrica e indipendente, Aulenti è stata capace di lasciare un segno forte e riconoscibile affermando la propria identità. Esplora e si mette alla prova in diversi ambiti: architettura, design, grafica, interior design, urbanistica e perfino scenografia.
La storia professionale
Si forma tra Firenze a Torino durante gli anni della guerra, al termine della quale sceglie di trasferirsi a Milano dove si laurea al Politecnico di Milano. Dal 1955 al 1965 è nella redazione di «Casabella-Continuità» diretta da Ernesto Rogers, ma allo stesso tempo si dedicherà alla grafica e alla progettazione di linee di mobili per famosi produttori come Knoll e Artemide.
Fin dall’inizio della sua carriera aderisce al movimento architettonico italiano Neo-liberty, caratterizzato da una rinascita della tradizione dell’ornamento, in opposizione al modernismo degli anni cinquanta. Tutte le sue realizzazioni sono contrassegnate da un ritorno ai metodi di tradizione costruttiva e manifatturiera, intrisa di una forte espressione stilistica personale.
Ama la luce e la sublima attraverso la progettazione di apparecchi d’illuminazione dalle linee morbide, come la famosa lampada “Pipistrello” (1965, Martinelli Luce). Mai puramente decorativi, gli oggetti sono spesso il completamento dello spazio architettonico in cui sono inseriti. Tra i più noti la lampada “Pipistrello” e “King Sun” per gli Showroom Olivetti di Parigi e Buenos Aires (1966-67) e, con Piero Castiglioni, la lampada “Bugia” per il Musée d’Orsay (Parigi, 1986) e la lampada “Cestello” per Palazzo Grassi (Venezia, 1986).
Il rapporto con il teatro e i premi internazionali
Negli anni ‘80 allestisce il Musée d’Orsay (1980-86), trasformando la Gare d’Orsay di Parigi in uno tra i più importanti musei d’arte del mondo. Seguiranno il nuovo allestimento del Musée National d’Art Moderne al Centre Pompidou (1982-85) e la ristrutturazione di Palazzo Grassi a Venezia (1985-86), per il quale cura numerose mostre temporanee.
Parallelamente alla produzione architettonica, Aulenti sviluppa un profondo rapporto con il teatro. Nel 1975 avvia un’intensa collaborazione con Luca Ronconi, con cui progetta le scenografie per alcuni tra i più importanti spettacoli del periodo. È stata una delle prime donne a ricevere numerosi riconoscimenti di prestigio: il Gran Premio della Triennale di Milano nel 1964, la Legion d’onore francese nel 1987, l’Honourary Fellow dell’American Institute of Architects nel 1990, il Praemium Imperiale per l’architettura della Japan Art Association a Tokyo nel 1991 e il Cavaliere di Gran Croce a Roma nel 1995.
Lo stile, il linguaggio
Prima grande monografica sulla sua intera carriera, durata oltre sessant’anni, la rassegna ripercorre una storia umana e professionale tra le più intense del Novecento italiano. La mostra, cronologica, non si limita a illustrare il suo vasto lavoro con disegni, prototipi, bozzetti, maquette e fotografie, ma riattraversa il suo approccio progettuale attraverso la ricostruzione, in scala 1:1, di particolari di alcune sue realizzazioni. Allestimenti di mostre e musei, case private, showroom, stazioni di metropolitana, scene di teatro, una sequenza di ambienti che s’incastrano l’uno nell’altro come un labirinto che il visitatore può esplorare, e che restituiscono in modo chiaro il suo linguaggio e il suo stile.
Un viaggio che comincia a Milano con la ricostruzione delle sagome di “Arrivo al mare” per la XIII Triennale (1964); prosegue puoi a Buenos Aires nel negozio della società Olivetti (1968) e ancora nello showroom a Zurigo, nel concessionario delle automobili Fiat (1973). Ritorniamo poi nuovamente in Italia, a San Michele di Pagana (Genova), accolti nel salotto di casa di Ennio e Giorgina Brion (1973), e poi ancora a Milano, alla Rotonda della Besana, alla mostra “Christo. Valley Curtain 1970-1972”, curata da Germano Celant (1973). Un inatteso cambio di allestimento ci porta a Prato, all’Istituto Magnolfi, con l’allestimento delle Baccanti di Euripide per la regia di Ronconi (1977), prima di ritornare ad atmosfere conosciute, a Palazzo Grassi a Venezia, alla mostra “Futurismo e futurismi”, curata da Pontus Hultén (1986). Improvvisamente siamo poi catapultati nella navata del Musée d’Orsay a Parigi (1986) e poi ancora a Milano, al Palazzo dell’Arte, nella Galleria dei disegni (1994) e al Teatro alla Scala, durante Elektra di Richard Strauss, sempre con la regia di Ronconi (1994), passando anche attraverso la sala cinematografica dello Spazio Oberdan a Milano (1999), a Napoli, in piazza Cavour, nella stazione Museo della metropolitana (2001) e infine a Perugia, all’aeroporto internazionale dell’Umbria “San Francesco d’Assisi” (2011), dove sui monitor delle partenze scorrono l’elenco dei suoi progetti e delle città che l’anno vista protagonista.
La mostra che racconta da dentro e non solo
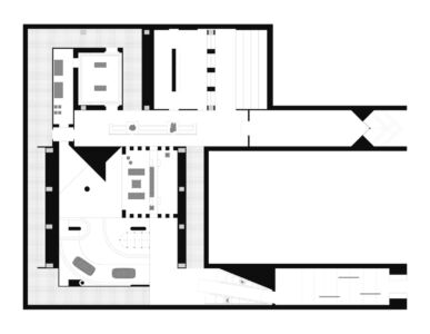
Il progetto di allestimento curato dallo studio TSPOON – fondato da Artioli, nipote di Aulenti – è un viaggio onirico, anche spiazzante, nel lavoro dell’architetta, attraverso spazi che sono frammenti di progetti, dalla forte capacità evocativa, onde farci davvero sentire di volta in volta in un’altra di città, o in altri luoghi. Un allestimento coerente all’approccio di Aulenti, come si può cogliere osservando la pianta dello spazio espositivo: un labirinto altamente progettato e raffinato, come lo erano i suoi disegni.
Alcune ricostruzioni raccontano progetti effimeri come negozi e scenografie teatrali, ma quando si entra nella dettagliata ricostruzione del salotto della famiglia Brion, sembra davvero di essere lì: si vedono le famose lampade e sedute, non semplicemente collocate su un piedistallo, ma inserite in un interno. Un tentativo di raccontare le cose da dentro, e non solo per immagini e parole. Ogni frammento è curato nei minimi dettagli riproponendo, per esempio per gli spazi museali, la medesima grafica delle didascalie.
Un modo diverso di vedere la vita di una grande progettista, e forse il più adeguato, visto che Aulenti si è sempre contraddistinta per un linguaggio chiaro e riconoscibile.
Immagine copertina – A San Michele di Pagana, in casa Brion (il salotto), 1973 – DSL Studio © Triennale Milano





Gae Aulenti (1927-2012)
Triennale Milano
Fino 2 gennaio 2025
In collaborazione con: Archivio Gae Aulenti
A cura di: Giovanni Agosti
Con: Nina Artioli e Nina Bassoli
Progetto di allestimento: TSPOON
Guida alla mostra: Gae Aulenti (1927-2012). I mondi, Giovanni Agosti, Electa
https://triennale.org/eventi/gae-aulenti
About Author
Tag
allestimenti , interni , Milano , mostre , teatri , triennale milano
Last modified: 1 Giugno 2024



























