Inaugurato a Torino un nuovo centro fitness che rivela la qualità del progetto d’interni
*** contenuto sponsorizzato
TORINO. Presente nella città della Mole dal 2015, da maggio 2021 McFit ha aperto la sua quinta palestra. Ricavata nei livelli terreno e ipogeo di un edificio di via Duchessa Jolanda, si trova nelle vicinanze della stazione di Porta Susa, all’interno dello storico quartiere residenziale denominato “Cit Turin”, risalente alla fine del XIX secolo e caratterizzato da eleganti edifici Liberty.
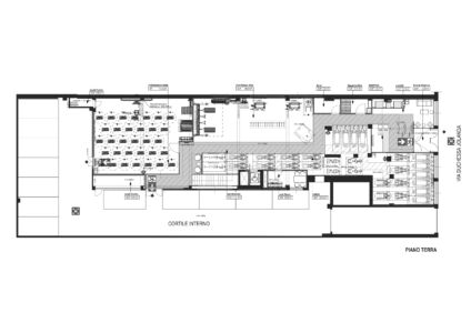
Distribuzione
Al piano terra si trovano la reception, la zona lounge (per il relax, la condivisione e l’aggregazione degli ospiti) e diversi spazi per l’allenamento, dotati di numerosi macchinari all’avanguardia: l’area cardio, l’area di functional training e la sala dedicata ai corsi, in presenza o virtuali (Cyberobics®). Al piano interrato sono invece ubicati gli spogliatoi, la zona pesi e quella per altri tipi di allenamento.
Interni
L’approccio progettuale di McFit da sempre dimostra sensibilità per quanto riguarda i legami tra artefatti visivi e percezione, campo privilegiato d’indagine della psicologia cognitiva lungo tutto l’arco del Novecento. Il concetto spaziale punta ad una valorizzazione degli ambienti che non vengono presentati come singoli spazi chiusi ma si vuole sottolineare la permeabilità tra essi.
Il linguaggio che caratterizza il nuovo centro fitness di Torino va infatti oltre il semplice aspetto funzionale di una palestra, al fine di creare un’atmosfera coinvolgente, dinamica e accogliente che, da un lato, ispiri negli ospiti sensazioni famigliari e “domestiche” di benessere e tranquillità e, dall’altro, sappia stimolare l’allenamento, trasmettendo energie positive. Da qui la scelta di arredi minimali, caratterizzati da colori freschi e da un approccio moderno e accattivante.
Un’attenzione particolare è rivolta anche al progetto di lighting design, fondamentale per stimolare il benessere nei frequentatori della palestra. Allo stesso modo sono esibiti i materiali di finitura (legno, cemento, ferro e vetro) e le carte da parati (con incursioni iconografiche nei mondi della street art, dell’etnografia e dell’arte contemporanea). Anche all’acustica è stata dedicata particolare attenzione. Inserendosi in un contesto condominiale, le zone più rumorose sono state allontanate dagli appartamenti; l’involucro murario esistente è stato placcato con apposite contropareti, mentre sono stati realizzati nuovi massetti, separati dalla struttura originaria, onde evitare la propagazione di vibrazioni e rumori negli ambienti soprastanti. Infine, è di particolare interesse progettuale l’attenzione e la cura del dettaglio architettonico di elementi quali la scala, i parapetti, le porte interne, le pareti divisorie, ecc.
La carta d’identità del progetto
Ubicazione: via Duchessa Jolanda n. 3 Torino
Superficie: 1.150 mq
Realizzazione: dicembre 2020 – maggio 2021
Progetto: arch. Tilman Schmidt, arch. Claudia Verea, arch. Samuele Frosio
Collaboratori: ing. Sergio Coletta (project manager), arch. Luigi Andrea Tafuri (DL, CSP, CSE), Studio i4 (impianti)
Chi sono i progettisti
Samuele Frosio: architetto e artista di Lodi, è responsabile tecnico di RSG Group Italia srl. Affascinato dalle opere di Carlo Scarpa per l’utilizzo delle forme e dei materiali, lavora sul connubio tra arte e architettura
Tilman Schmidt: architetto laureato al Bauhaus di Weimar nel 1998, è capo progettazione di RSG Group Italia srl. Vanta precedenti collaborazioni con grandi studi, tra cui Antonio Citterio e Partners
Claudia Verea: senior designer presso RSG Group Italia srl. Vanta oltre otto anni di esperienze come project manager, con la partecipazione a più di 15 progetti in tutta Italia
About Author
Tag
Dalle Aziende , interni , torino
Last modified: 3 Gennaio 2022





































