Il recente boom di edifici culturali costruiti in tutta fretta in Cina, ma anche un satellite del Centre Pompidou
Se nel 1949 la Cina contava 25 musei, oggi si stima che abbia oltre 5.100 istituzioni museali. In media 100 nuovi musei sono costruiti ogni anno sul territorio cinese. Solo nel 2012 ne sono stati inaugurati 451 (più di uno al giorno). La portata del fenomeno cinese è ancora più evidente se comparata con quella statunitense. Nel boom dell’edilizia museale americana, tra la metà degli anni Novanta e la fine degli anni Duemila, sono stati costruiti “solamente” tra i 20 e 40 musei l’anno. Ma non è abbastanza. Il National Cultural Heritage Administration’s work plan for 2016-2020 punta a costruire entro il 2020 un museo ogni 250.000 abitanti. La febbre mondiale dell’edilizia museale non sembra arrestarsi.
Al di là dei numeri, in Cina questa tendenza ossessiva sta portando al completamento di centinaia di nuovi “musei fantasma”, centri culturali senza una collezione consolidata o una visione curatoriale chiara. Architetture ostentate e mirabolanti rimangono spesso sottoutilizzate o vuote, in attesa di essere riempite con contenuti non meglio definiti. Con la stessa fiducia con cui le new town saranno abitate, si confida che anche queste strutture una volta completate ospiteranno “qualcosa”.
Questo fenomeno è il risultato più tangibile di un progetto culturale nazionale, una politica attuata sistematicamente sia dalle autorità centrali sia da quelle locali. Le prime direttive a favorire lo sviluppo dell’economia culturale sono state stabilite dal governo negli anni Ottanta. Queste politiche hanno alimentato investimenti pubblici e privati nelle industrie culturali e creative attraverso tre piani quinquennali consecutivi (l’ultimo si concluderà nel 2020), che assumono e promuovono la cultura come “pilastro” dell’economia nazionale. La costruzione di nuovi musei inizia così nelle città di primo livello, accelerata in occasione di grandi eventi culturali come le Olimpiadi di Pechino nel 2008 e l’Expo di Shanghai nel 2010. Le città di secondo e terzo livello replicano ben presto il modello, desiderose di beneficiare del cosiddetto effetto Bilbao. Sotto la pressione del governo anche città più piccole o dalla crescente ambizione decidono di ampliare la propria infrastruttura culturale.
Queste strutture spesso iconiche giocano un ruolo significativo della definizione dell’identità e nella promozione di nuovi centri urbani, Central Business District (CBD), quartieri culturali e operazioni commerciali. Sono “vetrine” per l’ambizione delle amministrazioni municipali, piuttosto che per vere e proprie collezioni d’arte. Secondo Jeffrey Johnson il boom dei musei cinesi è stato alimentato da una precisa strategia: «Le amministrazioni locali offrono siti privilegiati agli investitori per progetti di sviluppo immobiliare di tipo residenziale o commerciale, a condizione che costruiscano e gestiscano anche un museo (o altra struttura culturale)». In questo modo le municipalità riescono ad ottenere nuovi edifici pubblici iconici senza doverli pagare. Ma come spesso accade in Cina, una volta completata la costruzione inizia il vero sviluppo sui terreni adiacenti. Usati per addolcire il business fondiario, alcuni musei finiscono per svettare addirittura nel bel mezzo del nulla.
Anche il settore privato ha giocato un forte ruolo nel guidare questa frenetica attività edilizia. Le nuove strutture culturali sono state bollate come “progetti di vanità” di investitori privati, fondazioni bancarie, nuovi mecenati e nouveau riches che vogliono soddisfare personali programmi di natura filantropica. Questa tendenza è strettamente legata alla crescita della nuova classe media cinese, all’espansione del mercato dell’arte e all’aumento del consumismo culturale a livello globale.
Rinomati architetti internazionali come David Chipperfield, Kohn Pedersen Fox, OMA e firme cinesi come Open Architecture, Vector Architects, Tao Office vengono arruolati per dare forma a questa ondata di nuovi progetti. Tralasciando l’impatto culturale, questi interventi si dimostrano terreno dalle straordinarie potenzialità formali, tettoniche e tipologiche per gli architetti contemporanei. La sfida consiste nel rispondere a una domanda di cultura oramai globale, cercando di definire interventi che riflettano sempre di più condizioni, tradizioni e ambizioni locali.
K11 Musea, museum-mall a Victoria Dockside, Hong Kong
Inaugurato nel 2019 dalla società New World Development Company, guidata dal magnate cinese Adrian Chen, il progetto del K11 Musea sfida le tradizionali concezioni spaziali del museo e del centro commerciale, ibridandole in una nuova destinazione cultural-retail nel quartiere rigenerato di Victoria Docksid. L’esito è un museum-mall, che ambisce ad aumentare la popolarità degli artisti locali ed attrarre le giovani generazioni. L’arte e il design non sono più intesi come qualcosa di elitario, ma diventano oggetto di super-consumo, accessibile alla massa, in un’architettura di retail esperienziale che induce al dialogo creativo tra arti diverse e i suoi consumatori. Per creare questa “Silicon Valley della cultura” Chen ha arruolato una squadra internazionale e multidisciplinare di 100 creativi, a cui ha affidato parti specifiche del progetto sotto la guida degli studi Kohn Pedersen Fox (KPF) e James Corner Field Operations (JCFO).
Dune Art Museum, un guscio incastonato nella sabbia della Bohai Bay
Sepolto sotto una duna lungo la costa della Bohai Bay nel nord della Cina, la struttura organica del Dune Art Museum emerge appena. Il museo, progettato dallo studio Open Architecture e gestito da Ullens Centre for Contemporary Art (UCCA), importante istituzione artistica privata pechinese, è l’ultima architettura scultorea aggiunta alla collezione di spazi culturali promossi da Ma Yin per Aranya Gold Coast Community, un complesso di ville, condomini e alberghi con vista sull’oceano. La scelta di “scavare” l’edificio nella sabbia nasce dalla volontà dei progettisti di preservare il fragile ecosistema costiero, già compromesso dalla crescente industria del turismo balneare. Come uno spazio primordiale, l’ambiente interno si dispiega mediante un suggestivo sistema di grotte interconnesse. La luce naturale, che filtra dai lucernari e delle grandi aperture sul mare, riempie lo spazio. La complessa geometria dei gusci di calcestruzzo è stata modellata da maestranze locali (alcuni dei quali ex costruttori navali), con sottili casseforme in legno. La texture irregolare e imperfetta delle superfici acquista un valore ornamentale, esaltando la “iper-artigianalità” del sistema costruttivo.

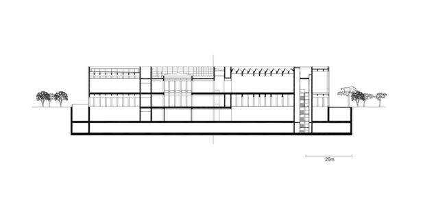
West Bund Art Museum, il Pompidou a Shanghai
La nuova sede del Centre Pompidou a Shanghai si trova in un’ala del nuovo West Bund Museum, progettato da David Chipperfield. Inaugurato a novembre, l’intervento si fonda su un importante progetto di scambio culturale tra Francia e Cina, che prevede nei prossimi cinque anni il prestito di opere delle collezioni parigine e la possibilità per gli artisti cinesi di esporre al Centre Pompidou. Affacciato sulla riva settentrionale del fiume Huangpu, il museo è parte del masterplan del West Bund, lanciato dall’autorità distrettuale di Xuhui dopo l’Expo 2010, che sta trasformando ad un ritmo incessante un’ex area industriale di 9 kmq in un distretto culturale con numerosi musei in fase di cantiere o già approvati. Il complesso architettonico è composto da tre corpi principali, disposti attorno ad un atrio centrale a doppia altezza, che creano diversi spazi interstiziali aperti alla vita urbana. Il rivestimento dei volumi in vetro riciclato traslucido conferisce all’insieme un elegante aspetto iridescente.
About Author
Tag
cina , conservazione , musei
Last modified: 10 Gennaio 2020


 
                        

































