Prefabbricazione ed ecologia nel progetto Case della speranza per edifici interamente in legno
Saranno gli alberi a salvarci dalle minacce del riscaldamento globale? Un modo per contrastare i cambiamenti climatici consiste in una gestione ottimale delle foreste e nell’utilizzo sempre più ampio del legno nell’edilizia. Edifici lignei a più piani sono stati realizzati già a partire dagli anni ’90, ma la loro diffusione si è di recente intensificata nei paesi nordici sia dell’Europa che dell’America, fino alla sfida di costruire veri e propri grattacieli. Esemplare a tale proposito è la Mjosa Tower ultimata nel 2019 a Brumunddal (Norvegia): alta 85 metri per 18 piani, è attualmente la costruzione in legno più alta del mondo.
Secondo uno studio condotto da un gruppo di ricercatori negli Stati Uniti risulta che un edificio in legno di cinque piani abbia un effetto sul riscaldamento globale inferiore di un terzo rispetto ad una costruzione delle stesse dimensioni in cemento e acciaio. Inoltre l’anidride carbonica immagazzinata in un edificio di legno viene trattenuta nelle sue strutture per un tempo più lungo della vita naturale di un albero, ovvero fino a quando l’edificio non verrà demolito. La nuova rivoluzione edilizia nasce dall’uso del CLT (Cross Laminated Timber), legno lamellare a strati incrociati, che consente di progettare edifici sempre più alti e gradevoli, senza rinunciare alla sicurezza contro gli incendi.
In Germania spetta ad andOffice, un giovane e pionieristico team di architetti di Stoccarda, l’iniziativa più originale per contribuire alla stabilizzazione del clima e sostenere una politica edilizia in nome dell’ambiente. Specializzato in architettura sostenibile, andOffice infatti partecipa dal 2017 al progetto Hoffnungshaeuser (Case della speranza), promosso dalla Fondazione Merckle con l’Istituto di Urbanistica dell’Università di Stoccarda. Il progetto riguarda la costruzione di una serie di residenze in edilizia sociale completamente in legno.
Il progetto Hoffnungshaeuser (Case della speranza)
«Le Case della speranza nascono per dare una risposta a esigenze abitative diverse, creando spazi per la socialità e la condivisione. Esse sono infatti destinate sia agli abitanti del posto con difficoltà economiche sia a profughi provenienti da zone disagiate del mondo. E offrono al tempo stesso un contributo alla difesa dell’ambiente», afferma Tobias Merckle, promotore dell’iniziativa e discendente di una facoltosa famiglia d’industriali del farmaco. Per evitare un eccessivo consumo di territorio le case, edificate in complessi di più fabbricati, non sorgono alla periferia delle località prescelte, tutte situate nel Baden Wuerttenberg, la regione di Stoccarda, ma in zone limitrofe al centro, dove vi sia uno spazio disponibile in seguito a demolizioni o dismissioni. «Anche la scelta di una posizione centrale evita la ghettizzazione e favorisce l’integrazione sociale», osserva Merckle, che sottolinea come le case non siano abitate solo da immigrati ma da una ricca varietà d’inquilini: studenti, giovani famiglie, anziani. In ogni casa sono anche previste aree comuni d’incontro, sale riunioni, laboratori e garage sotterranei, mentre gradevoli spazi esterni ricchi di verde favoriscono la socializzazione.
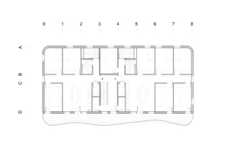
L’uso di un sistema a moduli prefabbricati (con lunghezza variabile tra 12 e 24 metri) semplifica il processo edilizio e aumenta la sua adattabilità alle condizioni urbane. Inoltre esso permette di ridurre i costi e di accorciare i tempi di realizzazione, così che ciascun intervento richiede tra i sei e gli otto mesi di cantiere. Dal 2017 a oggi i progetti ultimati sono stati sei, mentre cinque sono attualmente in costruzione e altri otto in fase di elaborazione. Disegnati in serie con sistema BIM, gli edifici si sviluppano su tre o quattro piani fuori terra e ospitano ciascuno una ventina di appartamenti. Questi sono disposti a blocchi di due o tre unità per piano, separati dal vano delle scale, con una superficie che varia tra 40 e 140 mq . Elemento centrale di ogni appartamento è il soggiorno-cucina di ampie dimensioni, mentre gli spazi interni di collegamento sono ridotti al minimo a favore delle aree abitative.
Prefiggendosi un equilibrio ottimale tra costi e benefici, i progettisti hanno dedicato grande attenzione alla realizzazione delle parti strutturali, con l’obbiettivo di raggiungere i migliori risultati non solo dal punto di vista tecnico riguardo a statica, acustica e di prevenzione degli incendi, ma anche in ambito estetico. Nella maggioranza dei progetti, l’impiego nei solai di travi in legno lamellare ha offerto una soluzione economica per realizzare ampi balconi aggettanti che, con disegno variabile, movimentano le facciate e caratterizzano ciascun complesso edilizio. Pannelli a listelli verticali di varie dimensioni arricchiscono ulteriormente le facciate. Un notevole risparmio nei costi di produzione in serie dei singoli componenti ha permesso di offrire in tutti i condomini alti standard abitativi: dai serramenti in legno, al riscaldamento alimentato da pompe di calore ad aria con pannelli radianti, ai servizi rivestiti con ceramiche di qualità.
Affermano i progettisti: «In ogni appartamento abbiamo minimizzato la presenza di pareti portanti per ottenere grande flessibilità degli interni e consentire una loro rapida riconfigurazione in caso di necessità: perché la proporzione tra inquilini stanziali e immigrati è variabile e in futuro le esigenze abitative potrebbero cambiare. Anche in previsione di una possibile immissione di questi immobili sul mercato libero, le pareti divisorie potranno essere facilmente rimosse e le abitazioni riconfigurate secondo le richieste del momento».
About Author
Tag
BIM , compatibilità ambientale , germania , legno , prefabbricazione , social housing
Last modified: 17 Febbraio 2020

































