I molti progetti in corso dimostrano la vitalità delle inedite relazioni tra atenei e costruzione della città
ROMA. Con la presentazione del progetto vincitore del concorso di progettazione per la nuova Biblioteca unificata della Facoltà di Lettere e Filosofia dell’Università La Sapienza, tenutasi a febbraio, si aggiunge un ulteriore tassello al mosaico degli interventi architettonici e urbani che stanno interessando il primo ateneo romano e non solo. Alla presenza del sindaco Roberto Gualtieri, la rettrice Antonella Polimeni ha reso pubblico il progetto ideato dal raggruppamento formato dallo studio riminese Mijic Architects (capogruppo), Polistudio A.E.S. e Studio di Geologia tecnica e ambientale Copioli, che prevede un nuovo edificio di circa 5.200 mq a disposizione della comunità studentesca e della cittadinanza. La nuova biblioteca, infatti, non rappresenterà solamente la nuova sistemazione di un patrimonio di fondi librari che supera i 2,5 milioni di volumi, ma ospiterà anche un auditorium, spazi relax, aree verdi pubbliche ed esercizi commerciali. Questa nuova struttura, la cui collocazione è prevista nell’area della Città universitaria di San Lorenzo prospiciente piazzale Aldo Moro, avrà un ingresso su via dei Marrucini, dove verrà operata una cesura nel muro di cinta che avvolge gli edifici dell’ateneo, con l’intento esplicito di favorire una nuova permeabilità urbana.
Oltre a programmare la realizzazione di nuovi edifici, La Sapienza sta intraprendendo un programma di ristrutturazioni del patrimonio edilizio esistente: infatti, sempre nella Città universitaria, la società Proger, insieme allo studio romano ABDR, sta seguendo i lavori della riqualificazione e messa a norma del Palazzo dei servizi generali. A questo intervento si aggiunge anche il restauro di sette aule, sei al Policlinico e una nella Città di San Lorenzo, sempre a firma di ABDR.
Lo sviluppo a Pietralata
tuttavia, la celebre Città universitaria, progettata da Marcello Piacentini ormai quasi un secolo fa, non è l’unico pezzo di città su cui La Sapienza sta intervenendo per arricchire e adeguare il proprio patrimonio edilizio alle crescenti esigenze di spazio dell’ateneo più grande d’Europa. Alcune delle aree del quartiere di Pietralata interessate dall’ex SDO (“Sistema Direzionale Orientale”, progetto urbanistico di riorganizzazione delle infrastrutture direzionali ideato a partire dagli anni sessanta, mai realizzato e abbandonato formalmente con il PRG del 2008) sono infatti state trasferite dal Comune all’Università già da più di dieci anni.
A partire dal 2007, il Centro progetti DiAP della Sapienza (con incarico a Raffaele Panella, poi scomparso nel 2016) ha elaborato il progetto preliminare di una vasta area che prevedeva due comparti, uno destinato a spazi di ricerca e strutture didattiche per le facoltà umanistiche, l’altro dedicato agli studi scientifici, nello specifico le discipline farmaceutiche e le biotecnologie. Di quest’ultimo comparto l’Ente regionale per il diritto allo studio e alla conoscenza della Regione Lazio, dopo aver acquisito il progetto definitivo dal DiAP nel 2011 (professionista incaricato Rosario Gigli, coordinamento tecnico-amministrativo e di progetto Maurizio Alecci), sta portando a termine la realizzazione della parte dell’intervento che riguarda l’edificio per residenze universitarie e servizi agli studenti.
Il nodo critico delle residenze
I nuovi alloggi universitari rappresentano una buona notizia per gli studenti fuori sede, la cui situazione abitativa è particolarmente critica. La carenza di residenze a canone controllato è infatti aggravata da un mercato degli affitti sempre più inaccessibile, nonostante la città vanti tre grandi poli universitari pubblici e una delle più grandi comunità studentesche d’Europa.
A questa situazione, già problematica, si sommano discutibili interventi d’iniziativa privata come il contestatissimo Student Hotel nel sito storico dell’ex Dogana di San Lorenzo, che la società olandese TSH, proprietaria di una catena di studentati di lusso, punta ad aprire entro fine anno. Tralasciando le problematiche sull’impatto urbano, architettonico e sociale del progetto, l’aumento degli affitti per le case limitrofe – storicamente abitate da molti studenti sia per la vicinanza con la Città universitaria, sia per il costo relativamente contenuto delle locazioni – rappresenta un rischio concreto.
Oltre allo studentato di Pietralata, sempre nell’area ex SDO La Sapienza ha in programma la realizzazione di un edificio per l’alta formazione in tecnologie innovative. L’Area gestione edilizia, una volta recepito il progetto definitivo dal DiAP nel 2017 per il primo lotto funzionale, ha ricevuto la validazione del progetto esecutivo nel 2022 e si presuppone che nei prossimi mesi verrà pubblicato il bando per l’affidamento lavori.
Uno snodo nevralgico: la nuova sede unica ISTAT e il nuovo stadio
L’ex SDO di Pietralata si prepara dunque a diventare uno snodo nevralgico della città: collocata a ridosso della stazione e della via Tiburtina e servita dalla metro B, quest’area si appresta ad ospitare non solo la nuova sede unica dell’ISTAT (progetto di concorso del 2018 vinto da ABDR), ma soprattutto il nuovo stadio della AS Roma Spa. Nell’ottobre 2022 la società ha infatti presentato uno studio di fattibilità al Comune e a gennaio la giunta capitolina ha approvato la delibera che ne riconosce la pubblica utilità, nonostante le preoccupazioni delle associazioni di quartiere riguardo all’impatto sul tessuto sociale e la mobilità.
A dire il vero Pietralata è solo il punto di arrivo di un lungo dibattito sulla localizzazione dell’infrastruttura: prima dell’ex SDO e dopo Tor di Valle, infatti, si era molto parlato della possibilità di collocare lo stadio in un’altra area di proprietà di un ateneo, la Città dello sport dell’Università di Tor Vergata (ora di proprietà dell’Agenzia del Demanio), ormai nota alle cronache come “la Vela di Calatrava”. Dopo varie ipotesi di riconversione del sito abbandonato, il sindaco Gualtieri ha da poco annunciato un finanziamento di 70 milioni per un primo intervento di riqualificazione in vista del Giubileo del 2025.
Gli interventi dell’Università di Roma Tre
Anche nel quadrante sud della capitale l’Università di Roma Tre sta intraprendendo una serie d’interventi di rinnovamento e ampliamento del suo patrimonio edilizio. Avevamo già riportato di come il più giovane degli atenei romani abbia realizzato nuove residenze universitarie a Valco San Paolo (progettista Lorenzo Dall’Olio) e recuperato l’ex Vasca navale per ampliare la facoltà di Ingegneria (progettista Andrea Vidotto).
Certamente l’intervento più eclatante riguarda il nuovo Rettorato firmato da Mario Cucinella sulla via Ostiense e inaugurato poco più di un anno fa. Come per la nuova Biblioteca della Sapienza, anche in questo caso il progetto esprimeva l’intenzione di un’architettura aperta e permeabile, proposito poi ridimensionato dalla presenza di cancelli, chiusure e guardianie che filtrano l’attraversamento degli spazi aperti al piano terra.
La volontà di apertura alla cittadinanza si riscontra soprattutto nel progetto per la Città delle arti, previsto all’ex Mattatoio di Testaccio, che attualmente ospita diverse realtà: il Dipartimento di Architettura di Roma Tre, l’Accademia delle belle arti, il Palaexpo, la Città dell’altra economia, la Pelanda e la Scuola di musica popolare di Testaccio. In questa cornice s’inserisce il nuovo progetto di ristrutturazione dell’ex Mattatoio per l’Università di Roma Tre, già oggetto d’interventi di riqualificazione da parte dell’ateneo con il recupero di alcuni padiglioni. Il progetto, redatto da Paolo Desideri, con Francesco Cellini e Luigi Franciosini, prevede il recupero di sei padiglioni che ospiteranno una nuova biblioteca, laboratori e spazi destinati al Dipartimento di Architettura. L’ex Mattatoio si conferma quindi come un polo dedicato alla formazione, alla creatività e all’arte sotto varie forme, anche se ultimamente non sono mancate le proteste da parte della comunità artistica a causa dell’interruzione del progetto sulle arti performative alla Pelanda da parte dell’Amministrazione comunale.
Spazi per la ricerca e la formazione, occasione per costruire nuove relazioni urbane
Il progetto di architettura per gli spazi della ricerca e formazione rappresenta dunque un’occasione privilegiata per costruire nuove relazioni urbane e non è un caso che alcuni tra i più attivi studi professionali romani si stiano occupando di questi temi. A Trigoria, ad esempio, procede spedito il cantiere della prima parte dell’Università Campus biomedico, progettato da Labics e Topotek 1; ai piedi di Villa Borghese è ormai completata la ristrutturazione dell’Istituto archeologico germanico ad opera di Insula Architettura e Ingegneria; è già attiva da qualche anno la nuova facoltà di Medicina e Farmacia della Sapienza presso l’ospedale Sant’Andrea su progetto di ABDR, che già nel 2013 aveva seguito il progetto di recupero ed ampliamento dell’intero nosocomio universitario.
Immagine di copertina: render dell’edificio della didattica dell’Università Campus biomedico (Labics, Topotek 1)
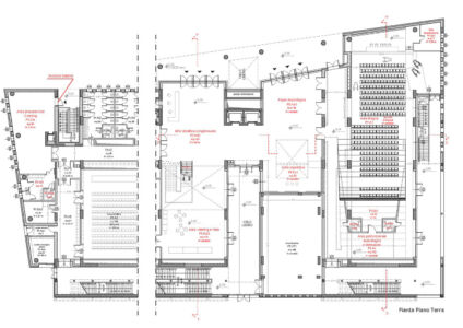
Ristrutturazione generale dell’edificio segreterie e servizi della Città universitaria
Committente: Università degli Studi di Roma “La Sapienza”
Progettisti: Proger + ABDR Architetti Associati
Anno di realizzazione: 2023
Superficie utile lorda di progetto: 13.800 mq
Importo lavori: 34,5 milioni
L’edificio esistente, collocato nella porzione della Città universitaria della Sapienza prospiciente a viale Regina Margherita, ha una forma complessa e articolata. Gli obiettivi principali del progetto di riqualificazione sono l’efficientamento energetico, il miglioramento sismico e la riorganizzazione funzionale. L’involucro edilizio viene completamente riprogettato mentre al suo interno le varie funzioni presenti (archivi, uffici, segreterie) vengono ridistribuite secondo un nuovo layout flessibile e adattabile anche ad eventuali esigenze future.
Ristrutturazione di sette aule
Committente: Università degli Studi di Roma “La Sapienza”
Progettisti: ABDR Architetti Associati
Anno di realizzazione: in corso
Superficie utile lorda di progetto: 1.700 mq
Importo lavori: 4,2 milioni
Il progetto prevede la ristrutturazione di sette aule, sei al Policlinico e una nella Città universitaria. Le aule sono caratterizzate da una continuità figurativa che ne garantisce la riconoscibilità. Oltre a una rinnovata immagine, le aule avranno un adeguato comfort acustico e illuminotecnico.
Edificio per l’alta formazione in tecnologie innovative a Pietralata (originariamente Centro di biotecnologie mediche e farmaceutiche e di tecnologie avanzate)
Committente: Università degli Studi di Roma “La Sapienza”
Progettisti: progetto definitivo – progettista incaricato Orazio Carpenzano, coordinamento tecnico Centro Progetti del DiAP, responsabile Maurizio Alecci
Anno: progetto definitivo 2017
Superficie utile lorda di progetto: 9.300 mq
Importo lavori: 32 milioni
Il progetto prevede un edificio con impostazione a pettine caratterizzato da un’alternanza di volumi costruiti e serre bioclimatiche. L’edificio comprende varie funzioni: una struttura didattico-congressuale con annessa un’aula magna di almeno 400 posti, spazi più piccoli dedicati alla didattica, spazi per eventi, laboratori scientifici e di ricerca, uffici e aree flessibili per start up.
Progetto di ristrutturazione dell’ex Mattatoio
Committente: Università degli Studi Roma Tre
Progettisti: coordinamento generale Paolo Desideri (ex magazzini frigoriferi), Francesco Cellini (padiglioni 15a, 15b, 16), Luigi Franciosini (padiglione 14)
Anno: 2022-23
Superficie utile lorda di progetto: 15.000 mq
Il nuovo piano è il frutto di una concessione ventennale gratuita concordata tra l’Università e il Comune con lo scopo di riunificare tutti gli spazi della didattica e della ricerca del Dipartimento di Architettura di Roma Tre nell’ex Mattatoio, progettato da Gioacchino Ersoch a fine Ottocento. Attualmente il Mattatoio ospita già i corsi di laurea triennale magistrale; le funzioni previste comprendono nuovi uffici per docenti e ricercatori, il laboratorio di Dipartimento per le prove dei materiali e la nuova biblioteca centrale di Dipartimento negli ex magazzini frigoriferi prospicienti al mercato di Testaccio, con l’obiettivo di creare un nuovo centro civico “misto” in connessione con il quartiere.
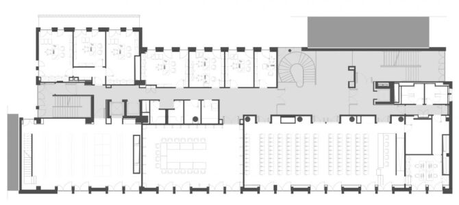
Edificio della didattica Università Campus biomedico
Committente: Campus Bio-Medico SpA
Progettisti: Labics, Topotek 1
Anno di realizzazione: 2022-23
Superficie utile lorda di progetto: 10.730 mq
L’edificio è strutturato secondo uno schema ibrido che nasce dalla sovrapposizione di una struttura lineare – alternanza di pieni e vuoti – con il modello a corte. Il risultato è uno schema che prevede due profonde fasce lungo i fronti sud e nord, dove si trovano principalmente le aule, mentre i fronti est e ovest corrispondono al “vuoto” centrale, nel quale si collocano gli ambienti principali (atrio, aula magna, cortile). Il sistema di portici che ne connota l’esterno è riconducibile a un più ampio sistema figurativo che regola i diversi interventi previsti dal masterplan generale.
Ristrutturazione della sede romana dell’Istituto archeologico germanico
Committente: Repubblica Federale di Germania
Progettisti: Insula Architettura e Ingegneria con Wenzel+Wenzel e Bollinger+Grohmann
Anno di realizzazione: 2023
Superficie utile lorda di progetto: 6.000 mq
Importo lavori: 26 milioni
L’edificio, realizzato nel 1962 in via Sardegna all’angolo con via Toscana su progetto dell’ingegnere Enzo Giannini con la consulenza di Annibale Vitellozzi, presenta una pianta rettangolare regolare e accoglie varie funzioni: una biblioteca su quattro livelli, tre sale lettura, un deposito libri, una fototeca, una sala conferenze, uno spazio polifunzionale, uffici e foresteria. Il progetto di ristrutturazione intende conservare alcuni ambienti che caratterizzano la spazialità e la funzionalità dell’edificio, quali la grande sala conferenze a doppia altezza e la sala lettura su due livelli con il grande ballatoio centrale. I progettisti si sono inoltre occupati dell’adeguamento strutturale, normativo e impiantistico.
Ampliamento della facoltà di Medicina e Psicologia nell’ospedale Sant’Andrea
Committente: Università la Sapienza di Roma
Progettisti: ABDR Architetti Associati
Anno di realizzazione: 2020
Superficie utile lorda di progetto: 6.800 mq
Importo lavori: 13 milioni
L’edificio si presenta come un volume puro le cui facciate sono caratterizzate da un disegno continuo di bucature orizzontali interrotto in corrispondenza degli ingressi sui due prospetti principali. Internamente le funzioni principali sono collocate al pian terreno intorno a un vuoto centrale per favorire la configurazione di una piazza interna. Ai piani superiori il vuoto centrale è circondato da un sistema di percorrenze che serve i laboratori e le aule.
About Author
Tag
concorsi , rigenerazione urbana , roma , università
Last modified: 29 Marzo 2023































































