A Pierluigi Piu la prima edizione del Premio regionale promosso dall’azienda Iter di Ruggeri
SESTU (CAGLIARI). Il 10 dicembre si è svolta la cerimonia di premiazione della prima edizione del concorso “La casa più bella”. Il riconoscimento, organizzato dall’azienda sarda Iter di Ruggeri, in collaborazione con la società Relive Communication, era aperto a tutti i progettisti che, sul territorio sardo, hanno recentemente realizzato spazi residenziali. Scopo dell’iniziativa: promuovere un confronto sulla qualità dell’abitare, grazie anche alla predisposizione di un sito web che raccoglie le 24 candidature e funge da archivio consultabile. Attenzione particolare, dunque, puntata sulla vivibilità degli interni, anche per il fatto che, in base alle tipologie d’intervento, ben 18 riguardano ristrutturazioni, di cui oltre la metà avvenute in appartamenti. Un segno incoraggiante in una regione costantemente sottoposta a spinte speculative, sebbene comunque sembri reggere l’impianto del Piano paesaggistico (PPR) varato dalla giunta Soru nel 2006. Infatti, anche se le successive amministrazioni politiche hanno dimostrato scarso interesse al tema della tutela del paesaggio (con la promulgazione di Piani casa in deroga al PPR, talvolta bloccati dal Consiglio di Stato), vige l’obbligo, entro precisi limiti indicati in cartografia ufficiale, della sola ristrutturazione delle preesistenze, vietando interventi ex novo.
Geograficamente, le provenienze dei partecipanti tagliano l’isola a metà, in diagonale; riguardano infatti completamente il sud-ovest, con una prevalenza dell’area metropolitana di Cagliari e una discreta rappresentanza del comprensorio di Oristano. Non pervenute, invece, le province di Sassari e Nuoro.
La giuria, composta da Michele Casciu e Pietro Peru (rispettivamente presidenti degli Ordini degli architetti di Cagliari e Sassari), da Valentina Cristo (consigliera dell’Ordine di Nuoro) e da chi scrive, ha premiato (5.000 euro) la casa a Santa Margherita di Pula (Cagliari, 2020), firmata da Pierluigi Piu e già celebrata da altri riconoscimenti (premio In/Arch 2020), anche internazionali. Il radicale intervento di riplasmazione di un’abitazione preesistente si apprezza nell’articolazione degli spazi (fluidità degli ambienti e relazione col sistema esterno continuo delle terrazze e, al livello terreno, delle pertinenze), nel rapporto con la morfologia del sito e nell’interpretazione di un contestualismo concettuale (la texture del basamento in basalto rosso e alcune finiture parietali interne di pregio che riprendono motivi a intreccio propri dell’artigiano locale, dai cestini ai tappeti e coperte, fino all’oreficeria).
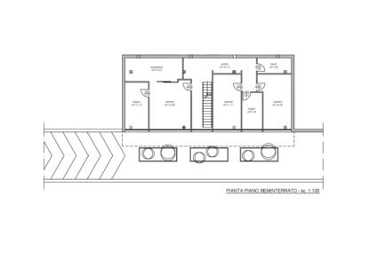
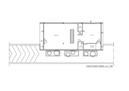
Gli altri due gradini del podio hanno invece premiato interventi ex novo, entrambi apprezzati per le soluzioni distributive. Seconda, la casa Psp a San Sperate, di Mauro Soddu e Nicolò Fenu (studi Tramas e Sardarch), caratterizzata da un’assialità trasversale che organizza spazi interni ed esterni dalla geometria rigorosa. Terza, la casa a Oristano di Salvatore Trogu, che inverte la sovrapposizione tra zona notte (al piano seminterrato, con orientamento trasversale) e zona giorno (al livello terreno, in un volume scatolare parallelepipedo, aperto solo sulle testate).
Confidiamo dunque che l’iniziativa abbia un seguito, per un territorio in cui turisticamente s’investe molto, ma con esiti architettonici spesso non all’altezza, tra finto vernacolo e ostentazione del lusso. Costa Smeranda docet.
![]()
Chi è il promotore del Premio
Iter di Ruggeri è un’azienda leader in Sardegna nel settore delle forniture e servizi per l’edilizia residenziale. Fondata nel 1973 da Rolando Ruggeri a Guspini (Sud Sardegna), dal 1998 è guidata dal figlio Davide. Attualmente conta oltre 100 addetti nelle tre sedi di Guspini, Sestu e Selargius (Cagliari), ove sono allestiti ampi showroom (mediamente, 2.400 mq), con prodotti di alta fascia in ambientazioni curate.
About Author
Tag
abitare , Dalle Aziende , interni , premi , sardegna
Last modified: 20 Dicembre 2022










































